В Запорожье 20 сентября начались работы по реконструкции сквера, напротив театра им. Магара. Уже в следующем году сквер Театральный должен быть доступен для прогулок и отдыха, сообщает "ZаБор".
Так, на днях сквер оградили деревянным забором, а со вчерашнего дня начались работы по его реконструкции. Работы будут проводиться в два этапа. Объект планируют сдать в 2018 году.
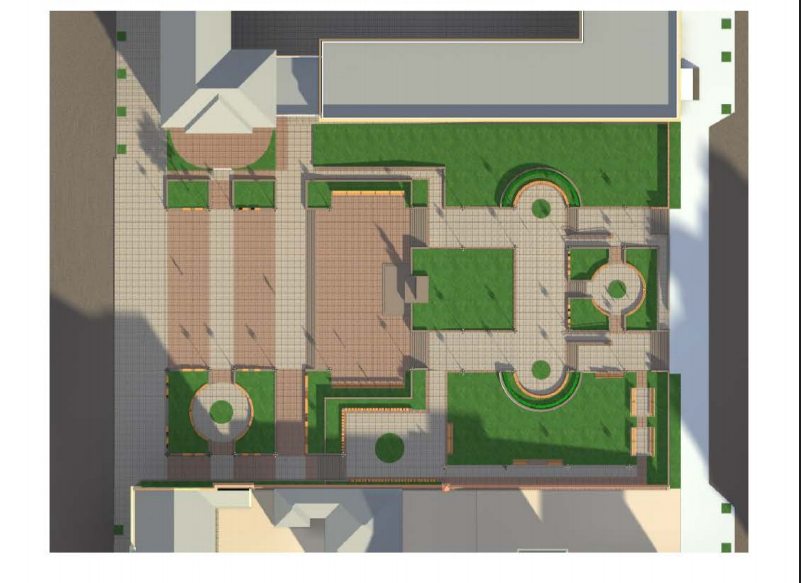
В 2017 году проведут общестроительные работы - демонтаж, капитальное строительство, удаление поросли, обустройство подпорных стенок, будет подготовлено все для отделки и благоустройства зеленых зон. В сквере проложат дорожки, озеленят и установят дополнительное освещение.
Также проектом реконструкции предусмотрено создание уютных террас, тенистые зоны отдыха с деревьями, лавочками, обустройство газонов и многое другое, сообщает пресс-служба мэрии.
Как ранее сообщал "ZаБор", на реконструкцию сквера перед театром Магара, городские власти выделили 10 млн. гривен.
Напомним, еще в 2013 году мэрия презентовала масштабный проект реконструкции сквера Театрального. На его реконструкцию планировали потратить 7 млн грн. Также планировалась установка в сквере памятника Тарасу Шевченко.
Однако в апреле 2015 года, УКС отменило реконструкцию. Как сообщалось в "Вестнике государственных закупок", причиной отмены закупки услуг по реконструкции сквера стало "Отсутствие дальнейшей потребности в закупке товаров, работ и услуг".
И лишь летом 2017-го, вопрос по реконструкции сквера Театрального сдвинулся с мертвой точки. Тогда в который раз презентовали проект реконструкции зоны отдыха горожан.







