В Запорожье горожан приглашают на открытие сквера Театрального
В Запорожье уже на этой неделе появится новый сквер. В пятницу, 14 сентября, напротив театра им.Магара, состоится его торжественное открытие, передает "ZаБор".
Напомним, что проект сквера с памятником Шевченко появился еще в 2013 году. Тогда мэрия презентовала масштабный проект реконструкции сквера Театрального. На его реконструкцию планировали потратить 7 млн грн. Также планировалась установка в сквере памятника Тарасу Шевченко. Вскоре выяснилось, что финансировать проект должен был частично Евгений Анисимов, более известный в СМИ, как "Смотрящий". Но после того, как Анисимова арестовали, о сройке и памятнике тут же забыли. И когда мэру Александру Сину задавали вопросы по поводу нового сквера, он предлагал адресовать все вопросы Анисимову.
А в апреле 2015 года УКС уже официально отменило реконструкцию. Как сообщалось в "Вестнике государственных закупок", причиной отмены закупки услуг по реконструкции сквера стало "Отсутствие дальнейшей потребности в закупке товаров, работ и услуг".
И лишь летом 2017-го, вопрос по реконструкции сквера Театрального сдвинулся с мертвой точки. Тогда в который раз презентовали проект реконструкции зоны отдыха горожан.


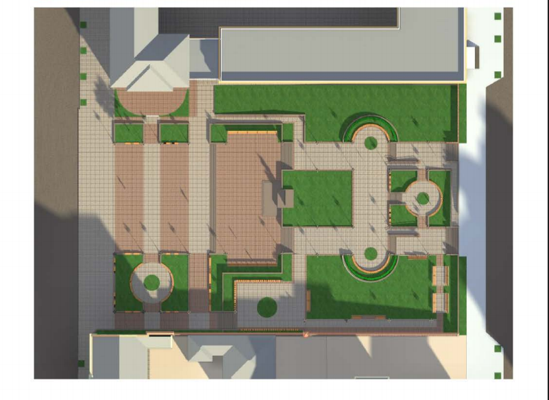
К слову, реконструкция сквера Театрального стартовала в прошлом году. С самого начала проект был рассчитан на два года.
В августе 2018-го мэрия продемонстрировала, как продвигаются работы.


Сейчас у сквера ведутся активные работы.






Сегодня, 12 сентября, же определена четкая дата открытия - 14 сентября. Всех запорожцев приглашают на торжественное открытие обновленного сквера Театральный.
В программе:
16.00-17.00 - выступление оркестра театра им.Магара;
17.00-17.30 - официальная часть;
17.30-18.30 - праздничная концертная программа.